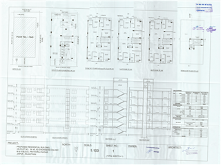
Property & Scheme : Property No : M45(6740000037)6 D ENGINEERS COLONY M&N-BLOCK-PRN

Applicant Name : M/s Nainath Buildcom Through Partner Nainath Comodities Prv.Ltd. Through Dir. Omprakash Gupta


  • http://cprms.jaipurjda.org/propertyERP/ImageMapApproval/Original///0c63b2dd-76c1-42fd-8726-63bd5d04f588.jpg
  • http://cprms.jaipurjda.org/propertyERP/ImageMapApproval/Original///cfe39bf5-5575-4334-85d1-80c81d1117ff.jpg
  • http://cprms.jaipurjda.org/propertyERP/ImageMapApproval/Original///61c9caf7-a09c-4767-aa03-37c7e596005b.jpg
  • http://cprms.jaipurjda.org/propertyERP/ImageMapApproval/Original///dd74dc68-246e-4d36-b52e-494f2a5e9d4e.jpg