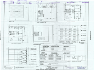
Property & Scheme : Property No : C-13(6655000010)GANESH NAGAR 22 (BLOCK-C)-PRN

Applicant Name : SHREE KRISHNA BUILDERS THROUGH PROP- BHANWAR LAL JAKHAD


  • http://cprms.jaipurjda.org/propertyERP/ImageMapApproval/Original///18bf896e-5f27-4604-b88b-df060536dafb.jpg
  • http://cprms.jaipurjda.org/propertyERP/ImageMapApproval/Original///b2d4e097-4cb3-4b9c-ae89-1d8cbbcaee61.jpg
  • http://cprms.jaipurjda.org/propertyERP/ImageMapApproval/Original///b081df75-dc6b-437d-996c-ae9e682fd620.jpg