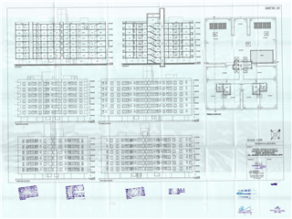
Property & Scheme : Property No : 98,99,100,101,102&102A(6020000078)MAHAVEER NAGAR-PRN

Applicant Name : M/s Shri Shyam Enterprises Through Partner Shri Mahipal Dhukia S/o Shri Surja Ram


  • http://cprms.jaipurjda.org/propertyERP/ImageMapApproval/Original///3e711dae-b0de-4951-aae0-2d9b4a9ac885.jpg
  • http://cprms.jaipurjda.org/propertyERP/ImageMapApproval/Original///3ae0241c-03c1-415f-9c4d-004f6860a3ac.jpg
  • http://cprms.jaipurjda.org/propertyERP/ImageMapApproval/Original///4f1337b2-9510-4ef9-8660-899c444d8d57.jpg
  • http://cprms.jaipurjda.org/propertyERP/ImageMapApproval/Original///d8102072-8165-44d8-9445-ef1acf468685.jpg
  • http://cprms.jaipurjda.org/propertyERP/ImageMapApproval/Original///12fd3e2e-9736-42e4-8e2c-c92c5421ad5d.jpg