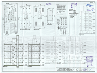
Property & Scheme : Property No : 56(6101000045)SHIV SHAKTI NAGAR -PRN

Applicant Name : Shri Shyam Builders Through Partner Shri Nand Kishore S/o Shri Khetaram, Shri Mahendra Dhukia S/o Shri Manakram


  • http://cprms.jaipurjda.org/propertyERP/ImageMapApproval/Original///fc7f4504-0e34-4a51-8a96-8e708b5053ed.jpg
  • http://cprms.jaipurjda.org/propertyERP/ImageMapApproval/Original///188c56bb-2492-4b07-b490-47261c23a68b.jpg
  • http://cprms.jaipurjda.org/propertyERP/ImageMapApproval/Original///3b8eafc7-888f-4bc7-8ea8-f36dca31b41a.jpg
  • http://cprms.jaipurjda.org/propertyERP/ImageMapApproval/Original///1882c8f7-509d-4b94-8f19-d80d97813261.jpg
  • http://cprms.jaipurjda.org/propertyERP/ImageMapApproval/Original///0efc95c0-4ed8-41aa-9d4b-73ce9b1dfcce.jpg