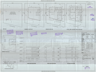
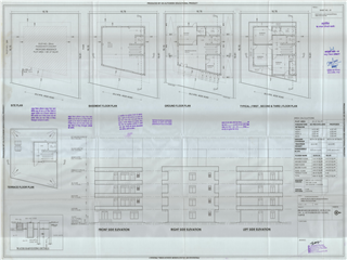
Property & Scheme : Property No : 294A(3718003112)PADMAWATI COLONY- I

Applicant Name : MANOHAR LAL LALVANI S/O SH. RADHOMAL


  • http://cprms.jaipurjda.org/propertyERP/ImageMapApproval/Original///b53a9610-85c2-472c-94bc-0c4ef95d8c63.jpg
  • http://cprms.jaipurjda.org/propertyERP/ImageMapApproval/Original///9dcb71fb-7afa-4a13-b10c-5261c036f5c3.jpg
  • http://cprms.jaipurjda.org/propertyERP/ImageMapApproval/Original///fef92293-41dd-4f23-9106-79129dad9fe3.jpg
  • http://cprms.jaipurjda.org/propertyERP/ImageMapApproval/Original///e3541729-c127-4a2d-b278-756b4d4954a5.jpg