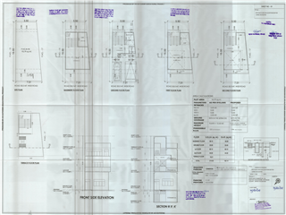
Property & Scheme : Property No : A16(1013000018)PATRAKAR COLONY(COMM)

Applicant Name : SUNITA DEVI W/O SH.MAHIPAL SHARMA


  • http://cprms.jaipurjda.org/propertyERP/ImageMapApproval/Original///b2bee9b7-77fe-4472-bbec-22c11df87370.jpg
  • http://cprms.jaipurjda.org/propertyERP/ImageMapApproval/Original///1e35abec-21e1-4bef-a4de-850ee4b1c079.jpg
  • http://cprms.jaipurjda.org/propertyERP/ImageMapApproval/Original///12489420-e3d2-4cf9-87bd-93424022a32f.jpg
  • http://cprms.jaipurjda.org/propertyERP/ImageMapApproval/Original///52f338d2-3ffd-4e9f-8bfc-00fd4e88db9c.jpg