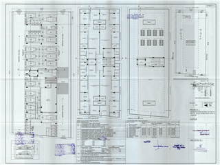
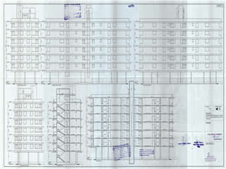
Property & Scheme : Property No : 51(9614000044)RAJLAXMI ENCLAVE-X

Applicant Name : M/S. ASKG HOMES THROUGH PARTNER SH. SURESH KUMAR PARASWAL S/O SH. GIRDHARI LAL PARASWAL


  • http://cprms.jaipurjda.org/propertyERP/ImageMapApproval/Original///dddfd4fe-63ff-4509-8c91-92254682a63d.jpg
  • http://cprms.jaipurjda.org/propertyERP/ImageMapApproval/Original///317f9387-56fe-4ae1-b9a7-984804c88b4a.jpg
  • http://cprms.jaipurjda.org/propertyERP/ImageMapApproval/Original///0173b577-36ad-4591-981a-0ee936222968.jpg
  • http://cprms.jaipurjda.org/propertyERP/ImageMapApproval/Original///730043ba-bc1b-47e4-b6df-e04735a5b49d.jpg
  • http://cprms.jaipurjda.org/propertyERP/ImageMapApproval/Original///33390e58-0617-4d5b-9f73-1bd8dc972193.jpg