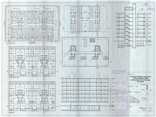
Property & Scheme : Property No : 46,46-A(WP),46A(EP)&47(6697000148)RAIL NAGAR

Applicant Name : M/S. ENVISION HIGHTS THROUGH PARTNER OM PRAKASH, ARJUN LAL & SHRAVAN KUMAR DOON


  • http://cprms.jaipurjda.org/propertyERP/ImageMapApproval/Original///5d514f92-a7ea-435c-81a4-f5d4a39044e9.jpg
  • http://cprms.jaipurjda.org/propertyERP/ImageMapApproval/Original///79866f89-cf00-4c7f-b949-12545b44432a.jpg
  • http://cprms.jaipurjda.org/propertyERP/ImageMapApproval/Original///d13be93d-ade8-4445-bd64-1af444bb9111.jpg
  • http://cprms.jaipurjda.org/propertyERP/ImageMapApproval/Original///553390da-0bba-4ad0-bcaa-d75ebb249596.jpg
  • http://cprms.jaipurjda.org/propertyERP/ImageMapApproval/Original///17101272-a342-4397-b209-0a4908423f67.jpg