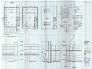
Property & Scheme : Property No : 75(5778000066)NAVKAR NAGAR-PRN

Applicant Name : ROHIT NARVANI S/O SH. PARMANAND NARVANI, SMT. KIRAN W/O SH. SANTOSH KUMAR, SMT. ANJU W/O SH.SUBHASH CHAND & SH. ASHOK KUMAR NARVANI S/O SH. ISHWAR DAS NARVANI


  • http://cprms.jaipurjda.org/propertyERP/ImageMapApproval/Original///3c8b32da-5bde-489d-9d94-d07fbf4608df.jpg
  • http://cprms.jaipurjda.org/propertyERP/ImageMapApproval/Original///1980bf8d-bf44-4861-97ea-b7e0e198a8cf.jpg
  • http://cprms.jaipurjda.org/propertyERP/ImageMapApproval/Original///e3e66ed3-a28f-4b10-a65f-822a54d2a4b0.jpg
  • http://cprms.jaipurjda.org/propertyERP/ImageMapApproval/Original///2430aeb6-5da3-48f4-9a7d-1b76059a1c49.jpg