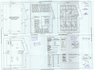
Property & Scheme : Property No : 35,36,37,40,41&42(5992000055)HANUMAN VIHAR-PRN

Applicant Name : SHYOJIRAM S/O SH.HANUMAN RAM JAT, SHRI KHIVARAM JAT S/O SH.BENARAM JAT AND SH.DOLA RAM JAT S/O SH.KHANGARAM JAT


  • http://cprms.jaipurjda.org/propertyERP/ImageMapApproval/Original///f546a22b-5200-4b76-bc42-fe760367b9ff.jpg
  • http://cprms.jaipurjda.org/propertyERP/ImageMapApproval/Original///2478cff8-6c9d-4a01-947d-aca54ede52b6.jpg
  • http://cprms.jaipurjda.org/propertyERP/ImageMapApproval/Original///f36eb796-66c2-479d-8e36-67264eb52658.jpg
  • http://cprms.jaipurjda.org/propertyERP/ImageMapApproval/Original///d6d1c105-769c-49b2-8ff3-dc642bc7a458.jpg
  • http://cprms.jaipurjda.org/propertyERP/ImageMapApproval/Original///08c6f313-bfb2-4a58-b3fd-aaeddea49bf3.jpg