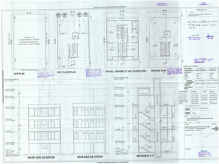
Property & Scheme : Property No : 21(6635000064)LAXMAN REKHA SCHEME NO 17

Applicant Name : MANOJ SHARMA S/O SH. MADANMOHAN SHARMA & PRENA SHARMA W/O SH.MANOJ SHARMA


  • http://cprms.jaipurjda.org/propertyERP/ImageMapApproval/Original///9989d53b-15d9-4ddc-bf68-e6fa3b646038.jpg
  • http://cprms.jaipurjda.org/propertyERP/ImageMapApproval/Original///c1fa556e-504c-4596-a315-672de0391327.jpg
  • http://cprms.jaipurjda.org/propertyERP/ImageMapApproval/Original///ba851ab2-4ad4-4282-8384-a31700e5d87d.jpg