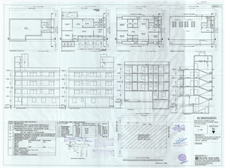
Property & Scheme : Property No : 315(4221003158)OFFICERS CAMPUS VISTAR

Applicant Name : KALYAN SINGH RATHORE


  • http://cprms.jaipurjda.org/propertyERP/ImageMapApproval/Original///546bd986-9d12-443c-a94b-9e6707187ae1.jpg
  • http://cprms.jaipurjda.org/propertyERP/ImageMapApproval/Original///3c6c3426-4997-4e34-8495-b13e20b78681.jpg
  • http://cprms.jaipurjda.org/propertyERP/ImageMapApproval/Original///2fb1c9b5-7318-4ea8-ab70-ead0f6adeff7.jpg