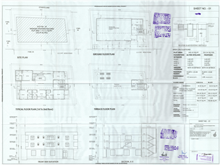
Property & Scheme : Property No : 34(9261000045)BHAMBHANIYA COLONY

Applicant Name : Shri Sawairam Jangid S/O Late. Shri Samarthama Jangid


  • http://cprms.jaipurjda.org/propertyERP/ImageMapApproval/Original///1e14db0b-3bdb-4360-ac8a-a78d7b71a3f3.jpg
  • http://cprms.jaipurjda.org/propertyERP/ImageMapApproval/Original///58cf5e9e-45ad-4381-97d9-01f7f190abaa.jpg
  • http://cprms.jaipurjda.org/propertyERP/ImageMapApproval/Original///bd695a3b-c56d-4ed9-8676-5bc2693b6da9.jpg
  • http://cprms.jaipurjda.org/propertyERP/ImageMapApproval/Original///185cd26d-0ca7-4c87-821a-fcc424c7a6b5.jpg