Property & Scheme : Property No : 83, 83A, 83B, 83C & 83D(4648000107)INDRAPRASTH

Applicant Name : Shri Ashish Kumar Sharma S/O Shri Ashok Kumar Sharma


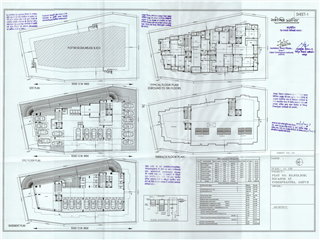
  • http://cprms.jaipurjda.org/propertyERP/ImageMapApproval/Original///fabb5a8e-78f3-42f3-b031-2decf2feab17.jpg
  • http://cprms.jaipurjda.org/propertyERP/ImageMapApproval/Original///d7c155c6-0af9-4092-8936-847592ce8b59.jpg
  • http://cprms.jaipurjda.org/propertyERP/ImageMapApproval/Original///fe58add9-81c3-43d2-bb85-46c0a24e7501.jpg
  • http://cprms.jaipurjda.org/propertyERP/ImageMapApproval/Original///d573779e-7684-4085-bd0a-510e604a2356.jpg