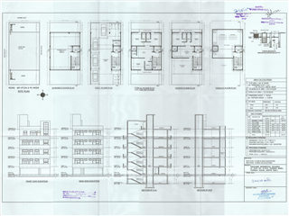
Property & Scheme : Property No : 215(1001007124)VAISHALI NAGAR

Applicant Name : Smt. Umrao Kanwar W/O Shri Ganpat Singh


  • http://cprms.jaipurjda.org/propertyERP/ImageMapApproval/Original///50348793-46b7-408f-8d8a-d51ebd0f4e09.jpg
  • http://cprms.jaipurjda.org/propertyERP/ImageMapApproval/Original///848aa114-7ef4-4c23-8942-97095ddd1300.jpg
  • http://cprms.jaipurjda.org/propertyERP/ImageMapApproval/Original///783c9553-bf0f-403a-b8a5-80406c54799c.jpg