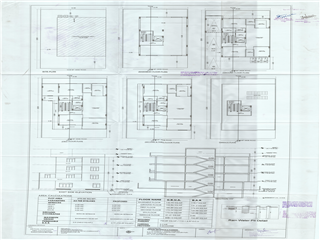
Property & Scheme : Property No : 161(1002034907)CHITRAKOOT YOJANA

Applicant Name : Shri Shivratan Agarwal S/O Shri Ramjivan Agarwal


  • http://cprms.jaipurjda.org/propertyERP/ImageMapApproval/Original///33b92632-4902-4fb4-91c5-bf800ef545a6.jpg
  • http://cprms.jaipurjda.org/propertyERP/ImageMapApproval/Original///161e69d3-64e7-4c14-a1cd-5bec5e9249b8.jpg
  • http://cprms.jaipurjda.org/propertyERP/ImageMapApproval/Original///e5690342-8237-4932-9cf7-003680714020.jpg