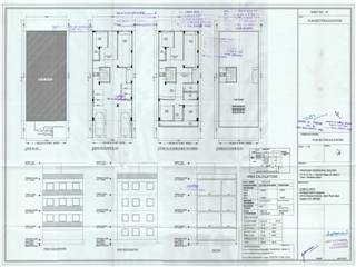
Property & Scheme : Property No : C7(6655000016)GANESH NAGAR 22 (BLOCK-C)-PRN

Applicant Name : Shri Gaurav Goyal S/o shri Nagarmal Goyal


  • http://cprms.jaipurjda.org/propertyERP/ImageMapApproval/Original///1f887345-15b6-42cd-8d63-5086b3acbf99.jpg
  • http://cprms.jaipurjda.org/propertyERP/ImageMapApproval/Original///c2383284-cc85-40ca-b0ab-ee20fe187c2b.jpg
  • http://cprms.jaipurjda.org/propertyERP/ImageMapApproval/Original///01c1bbb7-6345-4df6-b5db-52d94edb3623.jpg