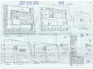
Property & Scheme : Property No : E-85& E-85/1 (West Part)(5664000133)JAGDAMBA NAGAR E -PRN

Applicant Name : M/s Parth Sarthi Construction Company, Through Prop. Shri mahendra Singh S/o Shri Megharam


  • http://cprms.jaipurjda.org/propertyERP/ImageMapApproval/Original///9fed8d57-c3c8-4942-b1cf-d0f7e701d716.jpg
  • http://cprms.jaipurjda.org/propertyERP/ImageMapApproval/Original///302a6a0a-4d67-48db-9071-3902ce4823f7.jpg
  • http://cprms.jaipurjda.org/propertyERP/ImageMapApproval/Original///511426cb-00af-452a-bf07-762a33f9eb67.jpg
  • http://cprms.jaipurjda.org/propertyERP/ImageMapApproval/Original///d1317ce3-41c4-48bf-ae81-bf6cbe94bea3.jpg