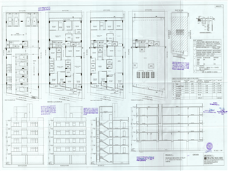
Property & Scheme : Property No : 71(7782000024)NARAYAN VIHAR F-PRN

Applicant Name : M/S Shri Krishna Builders Through partner Shri Suresh Kumar Bejariniya S/o Shri Kanaram Bejariniya and Shri Hema Ram Khichad S/o Shri Bodu Ram Khichad.


  • http://cprms.jaipurjda.org/propertyERP/ImageMapApproval/Original///f196d47a-7dd5-4880-854c-4e9632b40eb7.jpg
  • http://cprms.jaipurjda.org/propertyERP/ImageMapApproval/Original///828c3f99-ce34-4d83-b14a-ab597d5de5db.jpg
  • http://cprms.jaipurjda.org/propertyERP/ImageMapApproval/Original///3b4fc886-15d9-4853-bcda-5b5a49d03dcc.jpg
  • http://cprms.jaipurjda.org/propertyERP/ImageMapApproval/Original///6208c8ec-a73d-4dbf-ad8b-a7a5f6e55860.jpg
  • http://cprms.jaipurjda.org/propertyERP/ImageMapApproval/Original///67de988e-6135-48bc-992d-36fbbe13af85.jpg