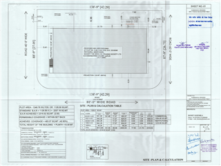
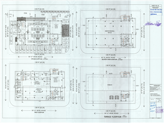
Property & Scheme : Property No : 48,49,50&51(6316000393)6 D ENGINEERS COLONY - PRN

Applicant Name : Smt. Pushpa Devi Makhariya w/o Shri Ramesh Kumar Makhariya, Shri Ramesh Kumar Makhariya S/o Shri Mohan Lal Makhariya, Smt. Pramila Makhariya S/o Shri Amit Kumar Makhariya, Shri Amit Kumar Makhariya S/o Shri Ramesh Kumar Makhariya


  • http://cprms.jaipurjda.org/propertyERP/ImageMapApproval/Original///5f2e6492-583b-447b-887d-c92f04564462.jpg
  • http://cprms.jaipurjda.org/propertyERP/ImageMapApproval/Original///86d8c016-88bd-4bd3-98d3-56a3fd917119.jpg
  • http://cprms.jaipurjda.org/propertyERP/ImageMapApproval/Original///ab9ea283-7c33-4089-942a-9139950b481b.jpg
  • http://cprms.jaipurjda.org/propertyERP/ImageMapApproval/Original///09799bac-676a-4998-9c62-a3c68a376376.jpg
  • http://cprms.jaipurjda.org/propertyERP/ImageMapApproval/Original///37aa7fe1-a6fc-4957-aaad-1d39c57c958e.jpg
  • http://cprms.jaipurjda.org/propertyERP/ImageMapApproval/Original///030f0186-e2b1-4efb-a508-c68472928777.jpg