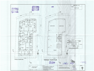
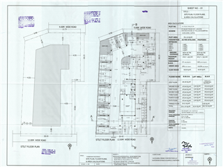
Property & Scheme : Property No : 118,118 A,129(2136000090)SITARAM VIHAR VISTAR-A

Applicant Name : Jagdamba Prime Construction LLP Through Partner Shri Santosh Kumar Agarwal S/o Shri Rajendra Kumar Agarwal


  • http://cprms.jaipurjda.org/propertyERP/ImageMapApproval/Original///32aa804c-de23-4d78-87ab-2168382233d4.jpg
  • http://cprms.jaipurjda.org/propertyERP/ImageMapApproval/Original///3219c778-9ed6-406c-a118-076ea809b8e2.jpg
  • http://cprms.jaipurjda.org/propertyERP/ImageMapApproval/Original///60b9810d-1fc1-4a4a-8597-2820f8655988.jpg
  • http://cprms.jaipurjda.org/propertyERP/ImageMapApproval/Original///0fe94c45-e2b2-4fad-8dea-8b7bffae6aea.jpg
  • http://cprms.jaipurjda.org/propertyERP/ImageMapApproval/Original///1dd15f30-2403-4ae1-8ea3-cfaa71f3b4e8.jpg
  • http://cprms.jaipurjda.org/propertyERP/ImageMapApproval/Original///c3d42642-6cd6-4f4d-a5f6-0b53ce8412a0.jpg
  • http://cprms.jaipurjda.org/propertyERP/ImageMapApproval/Original///12fcc59a-6cd3-4669-b696-cf78c0381730.jpg