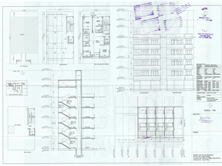
Property & Scheme : Property No : 123(5845000052)SUMER NAGAR VISTAR-Q BLOCK-PRN

Applicant Name : Manish Meghrani S/o Shri Gagan Das


  • http://cprms.jaipurjda.org/propertyERP/ImageMapApproval/Original///a8966117-1819-4756-bccb-69572c93e82e.jpg
  • http://cprms.jaipurjda.org/propertyERP/ImageMapApproval/Original///1977de07-789e-40e7-ab49-583af0ef2bb4.jpg
  • http://cprms.jaipurjda.org/propertyERP/ImageMapApproval/Original///da2d7455-34d6-4714-acac-e36a1a634d35.jpg
  • http://cprms.jaipurjda.org/propertyERP/ImageMapApproval/Original///df4b26a9-ac18-4a2b-9d1a-7aba883ed0b7.jpg