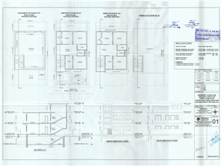
Property & Scheme : Property No : 89(6238000053)DR. RAJENDRA PRASAD NAGAR-KASRA NO135 -PRN

Applicant Name : Shri Surendra Kadwa S/o Heeralal


  • http://cprms.jaipurjda.org/propertyERP/ImageMapApproval/Original///d1bc13d2-ab44-4f0e-aff0-30c426187724.jpg
  • http://cprms.jaipurjda.org/propertyERP/ImageMapApproval/Original///1725cb1d-248d-48f6-a7d1-97f7b5b2b8d8.jpg
  • http://cprms.jaipurjda.org/propertyERP/ImageMapApproval/Original///49743267-fe47-4a47-98be-565fb526cfcc.jpg
  • http://cprms.jaipurjda.org/propertyERP/ImageMapApproval/Original///546fae17-a397-4326-9aed-92d40933d397.jpg