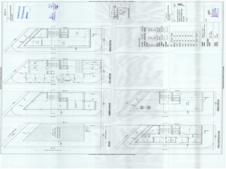
Property & Scheme : Property No : 98(6316000317)6 D ENGINEERS COLONY - PRN

Applicant Name : Shri Om Beniwal S/o Shri Bhagirath Beniwal


  • http://cprms.jaipurjda.org/propertyERP/ImageMapApproval/Original///55465469-e8b6-457b-bdf2-ba2319118446.jpg
  • http://cprms.jaipurjda.org/propertyERP/ImageMapApproval/Original///55bbb489-db8c-491f-90d0-71bde751dd6e.jpg
  • http://cprms.jaipurjda.org/propertyERP/ImageMapApproval/Original///ffec60fa-efef-451a-bad7-7246650986d6.jpg
  • http://cprms.jaipurjda.org/propertyERP/ImageMapApproval/Original///42c66244-1109-4e41-b294-464c5f003d1c.jpg
  • http://cprms.jaipurjda.org/propertyERP/ImageMapApproval/Original///f9a3599f-9438-48c0-95e5-3440ca97f2a0.jpg