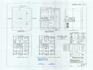
Property & Scheme : Property No : 28(6751000018)VIDHAN SHABHA NAGAR-A BLOCK-PRN

Applicant Name : Shri Virendra Saini S/o Shri Kishori lal,Shri Ravi Shankar Sharma S/o Shri Amer Chand Sharma


  • http://cprms.jaipurjda.org/propertyERP/ImageMapApproval/Original///bd27e5ef-8e78-4f71-9ec6-9b9ff43e2ce6.jpg
  • http://cprms.jaipurjda.org/propertyERP/ImageMapApproval/Original///13163515-7aa6-446f-ad9c-4950a35cca06.jpg
  • http://cprms.jaipurjda.org/propertyERP/ImageMapApproval/Original///ac8fdc78-bd03-4a38-9f4d-5743e0668146.jpg
  • http://cprms.jaipurjda.org/propertyERP/ImageMapApproval/Original///3f15d886-923a-4a83-89b8-3cf73c5d0cc7.jpg
  • http://cprms.jaipurjda.org/propertyERP/ImageMapApproval/Original///3a6e013d-7548-4ae7-af17-745ef8baffbe.jpg
  • http://cprms.jaipurjda.org/propertyERP/ImageMapApproval/Original///6fe39dd7-a48d-41c1-ac05-bf02a1651f68.jpg